一、引言
碓头村位于永泰县西部山区盖洋乡,包括碓头、前龙洋、村头三个自然村。辖区呈南北分布,地形狭长,东西两侧均为山岭,形似碓舂,因而得名(图1)。在日常生活中,三个自然村之间并无明确的界线,当地人通常视社庙为村界(图2)。
碓头村为多姓聚落,主要有叶、吴、黄、郑、林五大姓。叶氏家族原籍仙游古濑,后迁居洑口梨村(今梅村附近),于洪武二(1369)年迁入本地;现居碓头自然村,社庙为辅口宫,供奉忠文尊王。吴氏家族原籍尤溪,后迁居嵩口龙湘,于顺治二(1645)年迁入本地;现居前龙洋自然村,社庙为朱李明王庙,供奉朱李明王和法主圣君。黄氏家族原籍莆田,于宋元祐年间迁居盖洋,明前期迁居村头自然村;郑氏和林氏分别由邻近的盖洋、湖里村迁来村头,与黄姓共有的社庙为显圣宫,供奉广德尊王。
本地原有三座寨堡,分布于村西的山头上。这些寨堡原来属于境内各大家族,后来由当地各姓共同经营。其中麒麟寨在碓头自然村,原属叶家;重兴寨在村头自然村,原属黄家;兴隆堡(又名武忠寨、虎笼寨)在村头自然村,原属盖洋郑氏扛界支房。此外,碓头各姓都有古厝,即历代祖先建造的住宅。在碓头历史上,古厝与寨堡相结合,形成了颇具特色的聚落形态与族群关系。

图1 碓头村相对位置示意图
碓头村各大家族保存了历代遗留的各种文献资料(表1),如族谱、契约、阄书、账本、人情簿、科仪本、日用杂书、教材等。其中年代最早的可以追溯至明代弘治年间,年代最晚的形成于20世纪80年代。这些历史文献在民间日常生活中形成与使用,反映了世代相承的习俗与秩序,有助于深入考察明清以来的山区开发过程与社会经济变迁。

图片2017年10月初,笔者跟随厦门大学民间历史文献研究中心的考察团队,首次来到碓头村开展田野调查,收集和复制现存历史文献资料。此后,又先后于2018年4月和2019年6月重返碓头村,访问当地耆老,勘查历史遗址,收集民间文献,对当地的历史文化传统有了初步的了解。本文主要依据当地现存历史文献,结合田野调查资料,考察明代以来碓头的生态环境与生计模式,探讨当地各大家族的聚落形态与族群关系。
二、聚落形态的形成与发展
碓头村现在的聚落形态,具有家族聚居与各姓混居的双重特征。其中,叶氏家族集中居住于碓头自然村,吴氏家族集中分布在前龙洋自然村,村头自然村则分布有黄氏、林氏、郑氏和部分吴氏族人(图2)。这一聚落形态的形成过程,与明代以来的山区开发息息相关,反映了当地各家族之间既竞争又合作的族群关系。

图2 碓头村的聚落形态
黄氏家族的族谱在追述世系源流时写道:“传至宋朝元祐五年庚午,又远迁于永之盖峰扛界,构一祖居,名曰埔头厝。相传有始祖黄俊公、始祖妣卢氏若人也。”由此可见,在黄氏家族的历史记忆中,其祖先早在宋代就已迁居盖洋扛界。不过,从现存契约文书看,黄氏族人在明前期尚未迁入碓头村,而是居住在今盖洋乡奋斗村附近的“坑口里”。
叶氏家族的开基祖伯严公,于洪武二(1369)年迁居碓头,并修建了名为东放里的祖厝,其家族开始在碓头村开枝散叶。正统八(1443)年,叶景庸向福州人陈均禄购得盖洋乡山场数号,其契约如下:
立卖契福城陈均禄,今因无银办纳粮差,路途隔〔远〕,管掌不便,祖买税山数号,坐产永福三十五都盖洋地方,土名局厨,东至仙山吴家,西至山斗坊横路上郑家○○○○○○格张家山,北至上门垄山顶萧家山,界址明白。托中送卖永福三十五都东坊叶景庸处。三面言议,时值价银叁拾弍两五钱正。其银水文广即日交讫,其山场付银主前去培留树木,栽种管掌。此山并无重张典挂他人;如有不明,系禄抵当,不干银主之事。其山税五分弍厘七毛,买主前去办纳粮差,不得致累。此系两家允愿,各无反悔。今欲有凭,立卖契付执为照。
计开山号:一号土名麒麟庄。一号土名湖里○○洋大王庙。一号土名村头来水岭仑。一号土名坪洋头及大小隔。一号土名狮姑坑及狮姑塆。一号土名炭窑坪及红姑林。一号土名上湖汥及牛栏坑。一号土名坑口○及埔上仑,东至葛藤坪至牛墘仑乐家山。一号土名桥头坪至官路上。一号西至黄墘、岩尾。一号土名下番里及里村。
正统八年十月。〔立卖契人:〕陈均禄。中人:张添。
这张契约中的陈均禄为住在福州的城居地主,却在盖洋拥有大量的“税山”即在官府登记纳税的山场。他以32.5两的价格,将当地的十一号山场卖给叶景庸。所谓的“山号”,应是山场在鱼鳞图册上的编号,可见契中山场均是已登记在册的税山。契约载明,由买主前去办纳粮差,实际上就是将山场过户给叶家,叶家从此获得了上述山场的所有权。
弘治三(1490)年,坑口里黄外生以“无银办纳粮差”为由,将九号山场出卖给本族黄宥,立契约如下:
立契人黄外生,系永福县坑口里民。因见无银办纳征料,将山等号托中出卖与本族黄宥为业。三面断值,时价牛角鲜谷伍拾陆石小,每石重四十斤,折时价松皮银陆两四钱正,前来变粜银两,完纳料钞。其谷只日枰交收领明白,其山自弘治三年八月初二日始,遂付族兄前去掌管,任从栽插诸物,并无房分叔伯弟侄争占。其山另开条号,四至俱载,再无重张典挂他人财物。倘山内所载杉木伍拾之余根,大小不齐,亦随山付买主管业。四围一网,尽根出卖,寸处不留,向后再不敢执占。有能取赎,照利加二算还。倘或伍年之余不取赎者,亦无尽契原因,子孙亦无取赎之理。此系二家情愿,各无后异反悔生端;如有此色,许不悔人执契告理,续将山地入官无词。亲立契书付族兄黄宥永远为照。
壹号山茄垄,壹号山下榇崎,壹号山炭窑坪,壹号山牛栏坑,壹号山墘角,壹号山彭洋头,壹号山开林尾。
东至桥头坪大路,西至黄墘头,南至石狮崎路,北至里庄田,共九号。
< 骑缝:>管业□□□为照。
弘治叁年捌月 日。立卖契:族弟黄外生。写契:男黄盟。中人:黄九使。知见人:郑琑二舅。< 押>
在此次交易中,黄外生保留了对山场的回赎权,但似乎从未赎回,这些山场最终归黄宥所有。此契盖有永福县的红印,说明已在官府验契报税。值得注意的是,叶家和黄家所执契约中存在三号部分重合的山场,均位于村头自然村。这为两家人的山场纠纷埋下了隐患。
隆庆五(1571)年,黄氏家族与叶氏家族经历长期诉讼之后,在双方“亲人”和里甲“排年”的调解下,确认了各自的山场权益,签订了如下合约:
立合同退批人叶邦㭿、叶思敬等,有祖山坐落碓墘头、朱厝园、杨厝等处,与黄进明隔连混杂,讦告到县,遂托亲人郭承茂前来和处。情愿进明契内山场栽插竹木,退还进明照旧管业。外进明承得林懋经茶榴林一所,坐落墘兜后头塆,退还进明前去纳租,不涉叶家之事。其杂木空山各自散行,不在此禁。向后子孙各自遵守,不得妄生事端。如是生端,投众公罚银壹两叁钱铺路。二家情愿,各无反悔。各立合同二纸,各执为照者。< 骑缝:>夹立合同各执为照者。
隆庆五年三月 日。立合同退批人:叶邦㭿、叶思敬、叶马、叶邦椿、叶邦榆、叶景周、叶思添。公和处人:郭承茂。在见:排年郑华周、希武。< 押>(合同退批)
这一契约表明,黄、叶两家的山场纠纷,导源于山场地界“隔连混杂”。契约中有“排年里长”郑华周、郑希武的花押,并有县衙红印,说明官府认可民间调停的结果。不过,此契只是确认了黄进明有权经营自己栽插的竹木和承佃的茶林,并未确认各自的山场分界。契中还特意载明:“杂木、空山各自散行,不在此禁。”这说明,在当时的盖洋地方社会中,山场的权益主要取决于其实际经营状态,而并未划定明确的地界。因此,黄、叶两家的山场纠纷并未真正解决。
万历十一(1583)年,黄、叶两家因山界未明,再次对簿公堂。经请托“公人”踏勘山界,双方又签订了如下合约:
立合同人叶邦榆,有山场一派,与黄进明山相连。前隆庆年间因界址未明,□□掌入黄家界内,致控到县。后经公劝,将误掌之□□□培茶竹等木,立约退还黄管。兹因族侄未知山界,□□□黄家杉木,又控施主。今两造允息,托请公人踏清界址。水流村头一边,尽系黄山;水流碓头一边,尽系叶山。前后左右,俱照仑脊凭水分为界。自约之后,叶家不得越界混占,黄家子孙亦不得叛约过界,混相采取,并不得借强侵占。如有不遵规约,告官甘罚无词。此系二家情愿,各无反悔。今恐无凭,立合约二纸,永远各执一纸为照者。
计开山号:一自葛藤坪起,至上岐垄、太公仑、管路畬、桥头坪、坑口,水流庵头,系叶家山< 下空>。一自仙山下起,至员林、枫柏垄、里庄、虎栏仑下□□□水流碓头,系叶家山< 下空>。一自火尾垄、岩隔、炭窑坪仑脊,直至水浪塆,水流碓头,系叶家山< 下空>。一自碓墘头、埔上仑、桥头坪、垄仔、彭洋头、菁壑墘、狮姑坑、炭窑坪、下榇岐、红姑林、牛栏坑、杨厝垄、朱厝园,四围水流村头,系黄山< 下空>。
< 骑缝:>合同为照。
万历拾壹年捌月 日。立合约人:叶邦榆、邦㭿。在见人:许钦灿。公笔代字:郑一江。< 押>
这张契约亦为红契。在契中署名的在见人许钦灿和代字人郑一江,分别出自前湖许氏和盖洋郑氏两个里长户,足见双方对这纸合约的重视。相较于隆庆年间的契约,此契最重要的意义在于确认了两家的山界。以此契为基础,黄氏族人绘制了如下山场图(图3):

图3 碓头黄氏家族所藏山场图
这张山场图以黄家所居的村头自然村为中心,以不同颜色区分各家族的山场:绿色属叶家,黄色属黄家,邻近的蓝色山场分属郑、林、陈三家,灰色则为“外山无争”。在可能发生纠纷的地方标有土名,并绘有阴影表示山脊分界。叶家的山场以碓头自然村为中心,分布在村北、村东;黄氏的山场则以村头为中心,分布在村南、村西。值得注意的是,此图明确标注了前龙洋地区属于叶氏家族。两家人在上图标识的山场范围中开发山林和修建房屋,初步形成了叶氏家族聚居在碓头和前龙洋两个自然村、黄氏家族聚居在村头自然村的聚落形态。
顺治年间,吴氏家族从嵩口龙湘迁居碓头。为了在当地立足,吴氏的祖先娶叶氏女为妻,叶氏家族则以照料祖坟为条件,将前龙洋的山场作为嫁妆送与吴氏,使吴家得以在当地开枝散叶。清代中期,湖里村林氏家族的支派迁居村头自然村,通过购买黄家的祖厝地基,建造了名为“福隆居”的住宅,从而获得了在村头的入住权。此后,吴氏家族在村头购买了黄家的部分地基,建造了名为“福泰厝”的住宅。咸丰年间,盖洋郑氏家族扛界支房的族人购买了黄家在村头的部分山场,修建了“兴隆堡”和名为“长兴居”的住宅。
据当地老人传说,吴氏家族在初到碓头村时,带来了张君法主的神像,最初供奉在祖厝中,后来才在前龙洋建造了“隆兴宫”。张君法主又名张圣君,为嵩口月洲人,是永泰民众普遍信仰的地方神。吴家从嵩口迁居碓头时携带张圣君神像是合乎常理的。吴家在祖厝中供奉神像时,可能只是以张圣君作为家族的保护神;而到了创建“隆兴宫”之后,张圣君逐渐成为当地各家族的保护神。每年农历正月,当地各家族都要举办以神庙为中心的仪式活动。吴氏家族和叶氏家族分别于每年正月初六、初八日举办游神仪式,参与者多为本家族成员。村头各家族于正月初一到二十七日轮流举办点火仪式,主要参与者为林氏、郑氏和部分吴氏族人。
在碓头村历史上,叶、黄两家首先划分地界,吴、林、郑等姓通过联姻和购地建房,陆续获得入住权,逐渐形成了多姓共居的聚落形态。明中期的山场划界过程,体现了早期移民家族的资源竞争;清代的房地产交易,体现了晚期移民家族的“在地化”策略。自清代以来,碓头村各家族依托当地的山林资源,发展多元化的山林经济,促成了社会经济形态的转型。
三、生态环境与生计模式
盖洋又称盖峰,原指地势较为平坦的山间盆地,即今乡政府所在地,旧称扛界、墩前;“盖峰”泛指崎岖不平的山区,包括湖里、碓头、奋斗、龟脰等村落。从历史文献和日常称呼看,“盖洋”较为常用。当地现有183县道连接盖洋各村和嵩口镇,南边的山路可通往仓坪、麻畬、畬地等村庄,西南另有一条山路通往洑口镇。
盖洋乡地处戴云山脉,平地较少,山地较多,平均海拔在750米以上。平地大多分布在村庄西侧,已经开辟为水田,可以种植单季稻;山地则种植杉木、竹林、油茶、茶叶、李果等经济作物,这是当地主要经济资源。当地盛产“长连炮纸”,又名“毛边纸”,在嵩口汇集后运销外地。盖洋茶油鲜亮芳香,远近闻名。杉木是当地最重要的林业资源,通常先放排至嵩口,再经大樟溪运至福州南屿,然后经海运到达宁波等地。
据实地调查,盖洋历史上的林木外运有两条主要路线(图4):一是先将木材运往盖洋村,再经长潭溪放排至洑口。由于长潭溪水量不稳定、河道狭窄,一般只能在夏季涨洪水时放排。二是先经县道将木材运至嵩口镇,再经大樟溪放排。前者运输成本较低,但效率也低;后者运输成本较高,却能确保运输数量。本地的放排业曾长期由安溪人把持。

图4 盖洋乡放排路线示意图
注:路线一:①→③→④→⑤→⑥
路线二:②→④→⑤→⑥
碓头村山多田少,开发山林是当地人的主要生计模式。以往研究成果表明,福建山林经济明代中期开始萌芽,清嘉道年间进入黄金时期。在碓头黄氏文书中,有不少经营竹林和造纸的契约。从中可以看出,黄家于清中叶开始经营竹林,并开掘纸池造纸。其契约如下:
立承字侄兴智,今因少田,就在叔盛北处承出有民佃田开掘纸池壹口,坐址本乡,土名隔仔。递年约纳纸池租壹拾斤正,不敢欠租。如是欠租,其纸池付还田主,承主不敢霸占。今欲有凭,立承字壹纸付执为照。
嘉庆拾贰年贰月 日。立承字:侄兴智。在见:兄兴清。代字:弟文鼎。< 押>(大进益)
通过这一契约,兴智向盛北承得佃田用于开掘纸池,每年须缴付十斤纸作为“池租”。若兴智欠租,盛北有权收回纸池,双方实际上形成了主佃关系。造纸需要大量竹木和资金,促成了较为发达的借贷关系。例如,黄氏文书中有两张关于墘角竹林的契约文书,都涉及抵押借贷。其一如下:
立卖契黄盛德,有竹林一所,坐落村头地方,土名墘角。左至圳,右至路,上至盛贤竹林为界,下至文庆竹林为界,四至明白。今因无谷应用,自情愿托中送卖本乡亲人叶子巧处,卖出谷叁佰贰拾斤正。其谷即日收讫,其竹林付谷主前去铲䥽管业,任从其便,卖主不敢言说霸占之理。其竹林并无重张典当他人、财物不明等情之事;如有此等,系是当主出头支理,不涉谷主之事。俟至有能之日,备谷赎回者听。今欲有凭,立卖契一纸付执为照。
嘉庆十九年二月 日。立卖契:黄盛德。在见:弟盛长。代字中:弟盛发。< 押>(进益)
通过这一契约,黄盛德将墘角竹林以320斤谷的价格卖给叶子巧,但保留了回赎权。这种交易其实无异于典当,因此黄盛德在契约中自称“当主”。由于当时并未约定回赎期限,卖主可以随时赎回,而买主只能在赎回之前拥有竹林的经营权。过了三年,叶家又将这一竹林的经营权转卖给黄盛业。其契约如下:
立承字黄盛业,今因缺少竹林掘笋做纸,就在叶正用、叶子巧处承出竹林一派铲䥽培留。坐落本乡村头地方,土名牛栏坑并墘角仑,共弍号,承来用力铲䥽培留。递年不拘丰损,约纳租谷壹佰斤正送还交称,不敢拖欠斤两。如是拖欠斤两,照例行息。其竹林笋种共弍号,培留壹佰余根。如是无留,每根折价钱拾文正算。其旧竹还在,不许抛荒盗砍。如是抛荒盗砍,付还叶家另安别人,承主不敢阻占。立承字一纸付执为照。
嘉庆廿二年二月 日。立承字:黄盛业。在见:侄兴智。代字:兄盛发。< 押>(大熟)
通过这一契约,黄氏族人重新获得了竹林的经营权,而叶家每年可获得100斤租谷的收入,可以说是各取所需,互利共赢。这种将土地卖出又承回自耕的习俗,在当地被称作“掏根利”。
在黄氏家族中,经常出现纸池的交易或转让。例如:
立卖契兄文鼎,手置有纸池壹口,坐址本乡村头地方,土名车碓坂,文藻纸池价璧壹口。今因无钱应用,自情愿托中送卖本房文培弟处。三面言议,时值价钱壹千玖百文正。其钱即日收讫,其纸池即付弟前去管业作纸,任从其便,兄不敢言说霸占之理。言约递年约纳池租谷叁斤正付兄收。其纸池在先并无重张典当他人、财物不明等情;如有此等,系是兄出头支理,不涉弟之事。言约其纸池约期当年陆年,付弟作纸。俟至有能之日,备钱照契面当年冬赎回者听。如未赎,任付管业。今欲有凭,立卖契壹纸,并带龟脰郑元白赎回契壹纸,共弍纸为照。(内注“钱”壹字,再照。< 押>)
道光拾壹年拾壹月 日。立卖契:兄文鼎。在见中:弟文进。< 押>(大进益)
在这一契约中,文鼎将纸池卖给文培造纸,但约定六年后可以赎回,相当于抵押借贷。在六年之内,其纸池归文培经营,而文鼎每年仍可收三斤纸的“池租”。值得注意的是,黄氏的纸池都是在家族成员之间转让,可见黄氏族人不愿意让外人参与本族的造纸产业。此外,纸池的交易时间一般都在年底,这是由于受到造纸业经营周期的影响。造纸所需的竹子是嫩竹,到九月后毛竹开始枯萎,不再适宜造纸,所以造纸的高峰期是上半年。到了年底,纸池一般都要清理封锁,便于交易。
从现存契约文书看,叶家于乾隆年间开始经营茶油,到清后期建立了家族油杭(方言,即油坊)。叶氏的油杭建在祖厝麒麟堂的左侧横厝中,应该是由家族成员合股修建的。其契约如下:
立卖契侄良娱,祖有油杭壹座,坐址本厝麒麟堂左边,俗叫楼兜,今因无钱应用,自愿托中送卖与本房亲人声棠叔处为业。三面言议,时值价钱壹拾壹仟叁佰文正。其钱即日交讫,其油杭即付叔前去掌管克油封锁,任从其便。此是祖父所置己业,与别无干。在先并无交加来历不明等情;如有此情,系是侄出头支当,不涉叔之事。今因家贫无〔钱〕生活,向在叔承回克油。言约递年约纳油租拾斤正,至冬交清明白,不敢少欠斤两。如是少欠,即将油杭付叔前去掌管克油封锁,侄不敢异言生端之理。其期言约不拘远近,备钱照契面取赎。如未赎,依旧管业。今欲有凭,立油杭契壹纸,并带郑能品到收字壹纸,共成弍纸,付执为照。
民国壬申廿一年三月 日。立卖契:侄良娱。知见:母郑氏。代字中:叔声彦。< 押>(大进益)
通过这一契约,叶良娱将祖传的油杭卖给本房叔,随即又租回自己经营,约定每年交纳“油租”十斤。这说明,当时油杭的所有权与经营权是可以分离的,其业主可以坐食租利,未必需要自己经营。此契中的“郑能品到收字”,签订于光绪十(1884)年,内称叶家从道光至光绪年间的欠款已付清,郑家因此退还叶家抵押的油杭。自光绪年间赎回油杭之后,叶家的油杭再未转让给外人,所有的交易都是发生在族人之间。
黄、叶两家都有不少杉木。从契约文书看,黄家购买的山场、杉木都在本地,主要分布在村头。叶家除了在本地有山场、杉木外,契约中多次提到麻畬和东湖。麻畬村位于碓头村西南部山区,现属洑口乡;东湖村位于嵩口镇南部,现属仙游县西苑乡。两地均处于山区腹地,盛产高质量杉木。此外,麻畬邻近大樟溪上游的重要码头梧埕和洑口,而东湖出产的杉木可经赤水溪到达赤水村再汇集到嵩口。与黄家相比,叶家的山场分布更广,也更靠近放排河流和重要码头。因此叶家在杉木经营上具有更大的优势。
开发山林资源需要长期投资,必须拥有稳定的经营权。黄、叶两家都曾经制定家族规约,以维护山林经营的产权秩序。道光元(1821)年,黄氏家族的忠、恕两房在《祭墓簿》中,记录了族有山林的各种经营方式。例如:“嘉庆贰拾贰年拾贰月 日,忠、恕两房各人面议,兴园厝后门砍松柏柴钱,兄弟侄面算,纳出根租谷,充惟民公众下。其谷祭首当年收办。”当时共有7人承包家族山林,合计价钱2108文,交纳租谷23斤。这说明,忠、恕两房的山林产权属于家族公有,通过承包给族人经营以实现收益。道光四(1824)年,黄氏家族的天、地、人三房子孙在《祭墓簿》中记载:“一议,墓林壹仑,所留杂木遮阴风水。其松柏图片系兴园厝所留,众人不敢言说。所留杂木,三房公众言议松柏为记。一议,前年间寮后盛传所留竹树,路下付盛传掌管,路上不许私留。如是私留,众人会上砍伐。”天、地、人三房包括碓头黄氏家族的全体族人,这里议定的山林产权及其培育、砍伐办法,为家族内部的山林经营提供了基本依据。
乾隆年间,叶氏族人因砍伐松树发生冲突,于乾隆十一(1746)年召集族长、房长、家长、“公见”等人,共同议立了如下规约:
立规约仕猷、仕忠,为严禁松柏畅茂以荫分[风]水事。缘猷祖遗税山场,土名岩前仑,一系祖坟,培留松杉杂木已今茂盛。突于八月十八日,仕樵、绍玉砍伐松树一株,但今猷谨请族、房长,于九月廿一日设酒,与叔兄弟侄辈再立规约。培留松、杉、杂木,林内有杉木一统培留,以荫本方水尾峰峦。一仑里至隔头池为界,四围至田四丈以上为界,不许盗砍松杉杂木。如有无耻之辈不守规约,照条规公罚。倘有不遵,族长签名送官究治,不得登堂祭祀。各宜遵守,但言之不早也。决不虚言,所言是实。
一议:盗砍松杉杂木者,察出罚猪肉弍拾斤、鸡二只重四斤、老酒三十并白米弍斗,古纸半□;一议:旧业杉木铲䥽,各业各管,不许再置铲䥽等业。如有不遵,凭规条公罚。
乾隆十一年九月 日。立规约:仕猷、仕忠。族长:子明。房长:昌岐。房长:仕樵。家长:……公见:郑叶宜。执笔:仕友。< 押>(一团和气)
这一规约禁止砍伐风水林,其实是为了维护仕猷支派“祖遗税山场”的产权。在此之前,仕樵、绍玉等人砍伐岩前仑的松木,侵害了仕猷兄弟的利益,导致了族人之间的冲突。仕猷兄弟借助族长等人的权威,重申其山场产权,而仕樵等也必须在规约中签字画押,遵守全族公认的行为规范。
碓头历史上的黄、叶等家族,依托当地的山林资源,发展各种不同形式的山林经济,到清代已经积累了丰厚的族产。在此基础上,各大家族相继建造大厝,力求聚族而居,逐渐形成了以古厝为中心的家族组织。
四、历代古厝与家族组织
碓头村现存众多历代古厝,其前身大多为民居建筑,后来逐渐演变为各家族的“祖厝”,即祭祀祖先的公共场所。这些古厝有堂、厝、居、楼、里等名称,命名原则通常有:一是取吉祥之意,如福隆厝、福兴厝、福泰厝等;二是以房屋建造者命名,如阿可厝;三是以所在地命名,如桥头厝;四是依据家族传承关系,如金麟居和玉麟居之名均出自叶氏麒麟堂。
房屋命名习俗可能源自当地的宗教仪式传统。如碓头村的元宵仪式,一般要请前湖村的广兴坛许姓道士主持,在“请百神”科仪中有如下祝词:“敢蒙符官使者有灵通,手持古朵佩书同,头带飞天金帽,脚踏祥云口含香。有事坛前来禀告,无事不敢请符官。即据福建福州府永泰县三十六都和平乡英达里○○境○○坊○○厝住居,奉神赛愿祈福保安醮主○○。”其中,居住于某某厝、为“醮主”的身份标识是不可缺少的仪式要素。在叶氏文书中,有一张民国庚午(1930)年的过关科仪文书,内称:“太乙天罡大圣,为给诏佩奉护身执照事。据福建永泰县三十六都和平乡英达里盖峰上境东辅坊麒麟寨厝住居人氏,醮主叶声棠。”这里的“三十六都和平乡英达里”,显然是承袭了明清时期的都图建制,而“境-坊-厝”则是当地特有的空间概念。
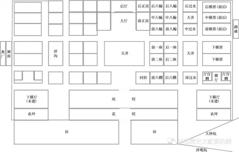
人类学家林耀华曾经指出:“在乡村社会,建大宅子被视为成功和显赫的标志。”永泰山区的“大宅子”,一般是“八面平楼”(图5),讲究左右对称、排列整齐。其主体建筑由回照、天井、前后官房和厅堂、前后包廊、左右书院、前后边房组成,且大多为两层楼房。如果要在主体建筑之外增建房屋,则必须呈竖排分布,称“横厝”或“扶厝”,而主体建筑则是“正厝”。后厅前面空旷的开放空间称正厅或客厅。正厅中间可以放置很大的方形桌,桌后设案台,案台后设神龛,供奉祖先牌位和神明灵位。正厅和后厅统称为厅堂,是正厝中最为重要的空间。正厅的门或梁上一般挂有红榜,上书屋名。
永泰山区的大厝通常可以住三到四代人。兄弟分家之后通常会在自己分得的房间内垒砌灶台,并在厨房后置办房间,形成相对独立的生活空间。每逢重大节日,在正厅举行仪式之后,这些小家庭才会聚餐。多数家族无力建造完整的“八面平楼”,但再简陋的房屋也会有厅堂、边房和官房(图6)。由于分家析产的影响,房屋产权呈现由集中到分散的演变趋势。分散的产权不利于形成紧密团结的家族组织,集中厝屋产权是实现小家庭联合的基本思路。
乾隆四十八(1783)年修的碓头黄氏族谱,记述了其传承谱系与早期祖厝:
盖我黄氏谱系出于唐之光启年间,祖自广西柳州府来宾县界牌村人氏,由唐文德间卜居于闽省福州,此一传也。自是再传至后周显德年间,乃徙居于兴化埔头之龙井,曰财丁、曰贵宦,子孙昌炽,难以尽陈。嗣后传至宋朝元祐五年庚午,又远迁于永之盖峰扛界,构一祖居,名曰埔头厝。相传有始祖黄俊公、始祖妣卢氏若人也。……至于迁我村头龙源坊岩兜祖屋者,果何人哉?又有讳曰招员公,出进明,号与白公,妣郑氏,为我龙源开山公是也。但未审其朝代,想是明季之时。其坟墓葬于本山牛路头,是皆有所稽而不失哉。

图5 汝器厝“八面平楼”布局图
资料来源:盖洋村三对厝郑步清文书:1册,5册。

图6 村头黄氏龙兴堂(2018-10-3)
如上所述,在乾隆年间纂修族谱的时候,黄氏族人对开基祖的情况并不清楚,只知道当时有“岩兜祖屋”。到了明末,该祖屋一度毁坏,“只存其基”。雍正元(1723)年族人“重兴而居之”,到乾隆时“复为祖堂,永传祭祖之处”。可见,在编纂族谱之前,“岩兜祖屋”承载了黄氏族人的历史记忆。在现存黄氏文书中,我们发现了雍正元年关于“岩兜祖屋”的合约:
立合约叔右昇/如文、惟希等,原有祖地基一座,与下房惟震弟应分各半,依旧约据,与震另议合同为定。叔昇/文、希/民等一半地基,昇、文三分之一,希应三分之一,民兄弟三分之一。叔昇/文、弟希等切思地基分各应小,其昇、文正屋共应地基贰㭴,其希应正屋地亦贰㭴,民自应贰㭴。昇、文、希等归一统□□□惟民兄弟前去一起盖屋住居,以为侄兄掌守。所有震应一半正屋地基并书院扶厝,与弟震换地起盖,系亦民自应己业,所有扶厝亦照三分之一,一半书院亦应三分之一。其正厝付侄兄起盖,侄兄另拨扶厝并书院与叔弟对换,并应自分应扶厝。逐一开列㭴数明白,自行盖屋。合当夹立合同为照。
计开:
民自应正厝全,书院左边全,与震借分。左边与震换地扶厝第三橺、第四橺共贰直,右边上坪扶厝第一橺一直,抽付昇、文二人,对换正屋弍㭴,又应另与震对地。右边下坪楼地扶厝,系民己应之地,又与震另换。左边第二重扶厝及余地至水井石为界,亦是民业,与本房侄弟无干。
昇、文己应右边第一橺扶厝一直,又应民换正厝地基西边上坪第一橺扶厝一直,又应民拨扶厝龙边第三橺壹直,对换书院,右边付希弟起盖。
希应书院右边全,内系民应一直,拨换正厝地基。又己左边第二橺扶厝一直。此照。
< 骑缝:>夹立合同二纸,各执永远为照。
雍正元年十二月 日。立合同:叔右昇、如文,弟惟希。在见亲人:郑仲群。代字:弟惟震。< 押>(天长地久)
从合约可知,黄氏“岩兜祖屋”的产权由派下子孙(图7)共同继承。惟民兄弟为了在正屋地基建造住宅,除了自己分得的六分之一份额之外,又以自家的扶厝地基和田产,与其他族人交换正屋地基。

图7 黄进明子孙世系图
根据族谱记载,上图中的守仁公房,传至世旺公绝嗣;守忠公房的世居公、世朝公、世清公三房,至雍正元年或绝后或外迁;守忠-世田公房下的日昇公、日晃公、日昊公、日最公四房,至雍正年间也全部绝后。因此,上述合约实际上是守义公房和守忠公房对岩兜祖厝权益的重新分配。守忠公房的惟震分得一半,守义公房的右昇兄弟、惟希惟民兄弟共得一半,所有人都是同时拥有正厝、扶厝的产权。由于派下子孙日增,人均产权越来越少,他们便通过地基的转让和交换,实现了正厝地基的集中使用。
在黄氏文书中,还保存了与上述契约配套的另一份合约,其中记载:“其震应分正厝、书院即扶厝,系民己对田与震一一换明外,立约另行,不在此禁。”这就是说,惟民用田产交换惟震在岩兜厝分得的屋产。此外,从雍正元年至三(1723—1725)年,惟民先后通过典当、买卖等方式,陆续将于文、惟希、右昇分到的扶厝、书院等地收为己业。不过,这些契约都明确注明:“此屋乔变之日,原地付还卖主子孙。”这说明,祖厝作为特殊的族产,卖方只愿意转让其使用权,并不想放弃自己的所有权。不过,在卖主未能回赎的情况下,实际上也就失去了其所有产权。
乾隆十七(1752)年黄惟民的两个儿子鲁水、心水分为忠、恕两房,乾隆三十八(1773)年黄心水的四个儿子分为福、寿、康、宁四房,每次分家都将岩兜厝作为祖业进行分配。不过,当时的岩兜厝已经很难用于居住,因而最终“复为祖堂,永传祭祖之处”。
值得注意的是,岩兜厝从住宅转变为祖堂的过程,并不是分家时的提留公产,而是分家之后经过一系列的产权交换与典卖重新实现的产权集中。黄惟民支派控制了岩兜厝的使用权后,在家族活动中获得了话语权。在岩兜厝转变为祖堂之后,黄氏家族随即制定了祭祖礼仪,并开始编纂族谱,致力于家族建设。在此过程中,黄惟民支派始终居于主导地位,形成了依附式的宗族组织。
碓头叶氏的家族组织,同样以祖厝为中心。家族开基祖为第十五世祖伯严公,于洪武二(1369)年迁居碓头,修建了名为“东放里”的祖厝。至二十三世文明公建立了“圳下厝”,其派下子孙共同建造了“麒麟庄”(又名麒麟堂)。二十六世建能、建达兄弟分家之后,长房承贵公(二十七世)一派,人丁不旺,二房承秀公(二十七世)一派日益兴盛。因此,叶氏族人决定将历代住宅作为祖厝,由两房子孙共同管理。其中“东放里”因年代久远破损,不再承担祭祀功能;圳下厝、麒麟庄用于奉祀文明公。另有二房二十八世祖子巧公建造了桥头厝,后又在圳下尾建“福隆居”,专门用于奉祀二房历代祖先。圳下厝和麒麟庄的祭祀活动,文明公派下全体叶氏族人参加;桥头厝、福隆居的祭祀活动,所有二房子孙参加,头人均由家族选派。叶氏家族的祭祖活动与传承谱系密切相关,具有继承式宗族的某些特征。
五、修建寨堡与族群联盟
寨堡作为军事防御设施,通常建有高大的围墙,不同于普通的民居建筑。明清之际,为了应对社会动乱,盖洋地区曾经建造了不少寨堡,但后来大多废弃了。清中叶以后,地方政府职能日益萎缩,促成了乡族自治的发展。为了加强社会治理,永泰各乡镇重建乡约保甲组织,实行地方联防制度。咸丰七(1857)年,永泰知县刘用锡和委员陈春熙遍赴县内各区谕办乡团,并修筑炮台加强防守。由于当时地方财政入不敷出,所谓“谕办乡团”就是动员民间自办团练,这导致了地方社会的普遍军事化。
根据民国《永泰县志》记载,从咸丰年间开始,尤溪、德化等地的土匪不断侵扰县境,到民国初期尤为嚣张。《盖峰郑氏族谱》记述了晚清民国时期的盖洋匪乱:
由于地与德化、尤溪相邻,自清末以来历遭匪乱。尤其于民国七年,德化、尤溪匪徒纷纷向我盖洋抓人、派款,扰乱不安。至民国廿年,德化匪魁黄其明以最大兵力向盖洋进攻,漏夜窜入盖洋,驻扎元朝寨,猛击洋墘寨。当时虽有嵩口总团来兵,不济于事,后请闽清黄炳武率兵援救。而匪帮知其来势不妙,竟施毒策,将前湖、龟脰、湖里等各寨焚烧,后将元朝寨、洋墘寨以及西湖庙全部烧尽,烧灭民房十余座。
如上所述,晚清民国时期的盖洋各村落,普遍遭受外来匪徒的侵扰。当时各村都建了寨堡,但仍然难以自保,陆续毁于匪乱。
在碓头现存民间文献中,有不少合作建寨堡的契约文书,涉及当地黄、吴、林、郑各大家族。从中可以看出,当时碓头民众为了聚众自保,采用了各种不同的合作模式,最终形成了跨家族的军事联盟。这一时期盖洋的聚落形态,实际上是寨堡与大厝的有机结合,这是庄寨建筑的又一表现形式。
在村头自然村附近的山脊上,以前有两座寨堡:其一是重兴寨,俗称“下寨”,其产权属于黄氏家族;其二是虎笼寨,俗称“上寨”,其产权属于郑氏家族。重兴寨现存部分围墙遗址(图8),其平均厚度达0.8米,大致呈正方形,占地1000多平方米。其西南方向有一缺口,应是寨堡正门。村中仅有一条小道可以通往寨堡,狭窄难行(图9)。重兴寨居高临下,易守难攻,但山上并无水源,只能作为临时避难所。

图8 重兴寨围墙遗址

图9 通往重兴寨的山路(2018-10-3)
据黄氏族人说,重兴寨始建于明代后期,民国初期曾重建,现存最早的相关契约订立于乾隆十三(1748)年。黄氏家族文书对早期的重兴寨有如下记述:
咸集父老之传闻,忆吾始祖进明公与其胞弟进达公,生于仙游县浦头厝,胸本明慧。因其国乱,乡闹巨擘,弱不敌强,移其父黄俊公金,葬在永福县三十六都盖洋保村头乡,土名堀里,坐甲向庚,高山之阳。就于即乡起盖重兴寨居焉,坐辛向乙兼戊辰居住。
可见早期的重兴寨同时用于居住和防御,可能规模并不大。有清一代长期的安定局面,弱化了重兴寨的军事功能。民国初年,黄氏族人为了抵御匪乱,决定重建重兴寨。当地的林、吴、郑等姓族人也要求进寨居住,与黄氏家族签订了一系列合约。在现存黄氏文书中,有一包注明“中兴寨”的契约,其中有11张“合约字”。在当地方言中,“中”与“重”谐音,这些合约显然都与重兴寨有关。合约内容主要是本乡各姓要求租用重兴寨的地基,进寨建房居住。其中一例如:
立合约字林典开、林典亨,兹见黄家祖上遗有堡地全座,坐址村头地方,土名中兴寨。当此世乱风移,进前相议,向黄永昌、黄永怀同处承来上座右边正房六㮼,并下座右边第壹橺壹榴,共叁榴。修砌造构寨屋全美,男女住居,关锁出入,并六畜入寨。及内外门路、巷路、天井余地、厕所上下座、前后厅,吉凶事通用通行,五行同用,任从其便,黄家不得异言之理。住居七年外,言约每年每榴约纳地租谷弍拾斤正,付黄家收回,不敢欠租。如是若无住居、无纳租,其堡屋付还黄家掌回,林家不敢异言。如无欠租,仍付林家住居掌管。向后匪徒再乱,亦付林家子孙住居,黄家子孙不敢言说生端。两家喜允,各无反悔。今欲有凭,立合约字弍纸,各执壹纸,付执天长地久为照。< 骑缝:>夹立合约字弍纸,各执壹纸为照。
民国己未年九月 日。立合约字:林典开。弟:典亨。中见:郑渭昌。代字:叶声韬。< 押>(添丁发甲)
上契中的林氏是村头村主要家族之一,其祖厝“福隆厝”紧邻黄氏家族的“岩兜厝”。林典开兄弟从黄氏承租寨基三榴,用于建造寨屋。双方约定,林氏建屋之后可以进寨居住,并使用寨内的所有公共设施,每年每榴须交租谷20斤。如果七年后林氏出寨居住,或是拖欠地租,其所建房屋归黄氏所有。其他各姓与黄氏签订的合约,内容大同小异(表2),都是进寨租地建屋的合同。这些契约大多签订于民国己未(1919)年,其中有7张为骑缝合约字。

*吴孝智所立契约不在前述包中,但根据书写格式、中人、代字人等,可以认定属于同一系列。
上表中所有的郑氏族人均属盖洋扛界支房,吴氏居前龙洋。中人为辈分较高的郑氏族人;代字人来自当地不同家族,通常有较高的公信力,其中叶声韬为当时叶家首富。从这些契约可以看出,当时以重建重兴寨为契机,形成了当地精英的超家族联盟。最后,这些合约的收执者皆为“黄永昌、黄永怀”,他们代表当时黄氏全体两房族人与各姓合作。
碓头各姓租用重兴寨的地基,进寨建房居住,实际上都是动乱时期的权宜之计。因此,到了和平时期,外姓之人可能并不进寨居住,甚至转卖自己的住房。例如,民国十五(1926)年,林典仁以缺钱为由,退还“堡屋”及木料。所立契约如下:
立退还字林典仁,于前己未年因世乱,承有堡屋壹㭴,承来修造以避寇难,坐址村头地方,土名重兴寨左边下座第肆榴前面壹㭴,上至椽瓦,下至地基,四围木料。今因少钱乏用,自情愿托中退还与黄永怀处为业。三面言议,时值退还出价钱捌仟零叁拾陆文正。其钱即日交讫,其堡屋壹㭴并下厅木料工资等款,统付还黄家自行修整掌管住居,任从其便,林家子孙永不敢生端异言等情之理。两家喜允,各无反悔。今欲有凭,立退还字壹纸,付执永远为照。
民国丙寅拾伍年叁月 日。立退还字:林典仁。知见:男进贵。代字中:吴孝盛。< 押>(大兴旺)
此契距己未合约刚好七年。从契约内容看,当时林典仁刚建成“堡屋壹㭴”,另有准备建造下座的木料,但因“少钱乏用”,就以8036文的价格退还给黄氏家族。此后,林氏退出了重兴寨,不再参与这一多姓合作的军事联盟。
民国十六(1927)年,黄氏族人创立了《重兴寨地租簿》,记载寨中各姓的地租收支状况。簿中佃户以吴姓为主,另有郑姓若干。记事内容延续至民国三十四(1945)年,可见直到当时重兴寨仍是多姓共有的寨堡。兹以寨中住户吴孝智为例,摘录其历年交租资料,列为表3。

此表显示,吴孝智在1928年欠了1斤租谷,至次年即多交1.5斤租谷,其中0.5斤作为利息。1930年吴孝智无法交租,由其亲属代交9斤租谷,欠租31斤,次年多交13斤作为利息。看来黄氏家族可以有效控制重兴寨的住户,很少发生欠租现象。又如郑志隆于1930年欠租20斤,黄氏就从郑氏“火烧寮土地公大租”处扒出租谷20斤抵扣;次年郑志隆再次欠租,黄氏又从其亲属郑裕庚处扒出租谷20斤抵扣。黄氏家族从寨中各姓收到的地租,主要用于修补寨墙等公共费用,维护重兴寨的居住环境。
在叶氏家族所居的玉麟居后山,原来有一座麒麟寨,据说因叶氏祖厝麒麟庄而得名。相传叶氏家族的祖炉原在麒麟庄上座厅堂,后迁至下座,此后族内的幼丁大量死亡;叶氏族人遂将祖炉迁回上座,并拆除下座,其木料用于建造麒麟寨。这一传说的现实意义,就是为了说明麒麟寨原来是家族公产。麒麟寨现已废弃,其寨基尚存,占地面积约1500平方米。据叶信村先生回忆,寨中原有一口水井,20世纪70年代此寨建筑老化,不再适合居住,才逐渐拆除。在现存叶氏文书中,有一组关于麒麟寨的契约,记录了其历代产权归属,体现了当事人的传承谱系(图10)。

图10 麒麟寨业主谱系
民国八(1919)年,因土匪持续侵扰盖洋,声韬、声棠兄弟与其他族人合作,重新修建麒麟寨,利用其地基建房居住。为此,声韬兄弟分别与声干、声吉等业主签订合约,租借其寨内地基。其契约如下:
立合约字弟声干,祖置有寨基壹塯,坐落本地,土名麒麟寨右边正房壹塯,又下座右边大门里第壹塯壹塯。今因声韬、声棠兄弟避乱要用起盖住居,与弟声干叔侄相议,其寨地即付兄起寨厝上下房屋住居,俟至三年外,递年约纳地租钱壹百文正。两家喜允,各无反悔,立合约天长地久壹纸,付执为照。(内添“塯”字壹字,再照。)< 骑缝:>立合约各执为照。
中华民国八年闰七月 日。立:弟声干。在见:兄声彦。代字:林如卿。< 押>(财丁兴旺)
立合约字兄声吉,祖置有寨基叁塯,坐落本乡地方,土名麒麟寨上座中橺壹塯,又左边弍塯。今因世风扰乱,声韬、声棠兄弟与兄声吉相议,其寨基即付弟起上下房屋住居,言约楼上后角壹橺,乱世付还兄住居,太平付弟住居。两家允愿,各无返悔。今欲有凭,立约字壹纸,并带国守据字壹纸,又带国庆卖契壹纸,共成叁纸。天长地久,付执为照。< 骑缝:>立合约各执为照。
中华民国八年闰七月 日。立合约:声吉。在见:弟声彦。代字中:林如卿。< 押>(财丁两旺)
上述两张契约分属不同文书群,从订立时间、契约格式和人名等线索分析,可确认其为一套合约。契约内容是声韬、声棠兄弟向其他业主租借寨内的地基。“在见人”叶声彦是当时叶氏家族二房除声韬、声棠兄弟外最有经济实力的族人;“代字人”林如卿则属于湖里林氏家族。其中,与声干的交易是租地建房,条件是三年之后每年交租钱100文;与声吉的交易是共同居住,但声吉只要求在乱世居住其中一间。不过,在与声吉的合约中,后来又注明:“十二年七月吉故,声月送回,向后不堪行用。”
在叶氏重建麒麟寨的过程中,当地吴氏族人也要求在寨内建房居住。其合约如下:
立合约字吴忠祥、吴忠厚等,同向与叶声彦房长处相议,有旧地壹座,坐址本保碓头地方,土名麒麟寨下座,右边剩有第叁塯壹塯㭴地。今因世乱,土匪骚扰,无处避难,让来修整地基,起盖房屋,男女六畜、家财器具等物搬入寨内住居。上下座前后厅余地、厕所、天井、门路,喜丧事通行出入,任从其便,叶家不得异言生端等情。言约住居三年以外,递年约纳地租钱弍百文正,付叶家收回,不敢少欠。如是少欠,将房屋付还叶家掌管;或无住居,房屋付叶家掌管,亦无地租。若地租钱无欠,仍旧住居管业,叶家亦不得借地主召回另租别人。倘日后世未清平,仍付吴家子孙搬入住居,听从其便,叶家不得霸占之理。两家喜允,各无反悔。今欲有凭,立合约字两纸,各执一纸,天长地久,付执为照。(内添“头”字一字,再照。)< 骑缝:>合同两纸,各执壹纸为照。
民国己未八年十月 日。立合约字:吴忠祥。同约:弟忠厚。代字:林如卿。< 押>(添丁发甲)
在这一合约中,吴氏族人通过租借地基的方式,与叶氏族人共同重建麒麟寨,加入了军事防卫联盟。合约中规定,到三年之后,吴氏族人每年必须交纳地租钱200文;如果欠租或不住,其寨中住房归叶氏家族所有,但到了乱世仍可进寨避难。
民国八年重建的麒麟寨,实际上是参与建寨者的共有财产,可以视为超家族的军事联盟。不过,现有契约文书表明,从民国十二至十八(1923—1929)年间,叶声韬兄弟陆续收购了族人叶声干、声蔚、良隅等在麒麟寨的产权。尽管部分族人仍然保留了回赎权,但似乎始终未能赎回。因此,民国后期的麒麟寨,实际上已逐渐转变为私产。
六、乌石禅寺的仪式联盟
地处碓头村西南部的乌石禅寺,又称乌石庵,始建于明成化年间。庙中供奉清水祖师,为来自闽南地区的乡土神,其祖庙在安溪清水岩。万历《永福县志》记载:“乌石山,去城一百三十里。相传仙游有清水祖师香炉飞来栖此,因建乌石庵。”(图11)

图11 乌石禅寺(2019-6-19,戎宗柳摄)
乌石禅寺原有世代相传的庙产,包括田地和山林。清初为了修建庙宇,住持僧秉戒向嵩口张氏族人借了高利贷,导致经营困难,僧徒外迁。后虽还清欠款,但口粮无措,生计维艰。康熙年间,秉戒决定“出外参学”,将寺院产业交付碓头叶氏家族管理。其契约如下:
立付字人乌石庵僧秉戒,前承接师祖僧常照公流传,遗下本庵香灯田山物业,管掌数年。因庵堂破坏,募缘修整,不觉徒子反心,搬走别住。苦无人相助,独心修整本庵已毕,收缘不足,以致所欠嵩阳张太生债息虽已明白,又缺口粮无措。将本庵香灯田并山场、物业付托盖洋叶文禄斋公耕种管业,办纳粮差,奉祝祖师香灯。两家情愿,戒出外参学。向后恐徒子生端,系戒出头支理,不涉文禄之事。今欲有凭,立付字为照。
计开田:井下,油麻坪,庵前上宅,并本庵前后竹林树木,尽付看管。□□有鉪一张,锄头一柄,斧头一柄,大□一柄,别物难以尽开。
粮纳差银壹两外,宅、田纳租弍百斤。
康熙廿八年十一月 日。立付字人:僧秉戒。< 押>
祖师佛□伽蓝、泰山尊王同保佃为中。
这张契约被包裹在写有“乌石山契,文禄壹纸”的包契纸中,可见叶家以此作为其产权依据。“斋公”一词,表明叶文禄曾参与寺院的香火管理。叶家接管寺产之后,每年必须向寺院缴纳租谷200斤,并代缴税款。从表面上看,乌石禅寺与叶家形成了租佃关系;实际上,叶氏家族借此长期掌控了乌石禅寺的经营管理权。有趣的是,契约中的保佃中人为清水祖师和泰山尊王,这是当地的两位主要神明。泰山尊王的庙宇位于碓头村与奋斗村之间的交通要道上,现由盖洋郑氏家族管理。在1997年的《重建泰山庙捐资芳名碑》中,一共有147名捐款者,其中91人出自郑氏家族,20人出自碓头叶氏家族,12人出自湖里林氏家族,还有些来自附近的前龙洋、前湖、小洋等村落,可见泰山尊王是跨村庄、跨家族的崇拜对象。
乌石禅寺介于盖洋与洑口之间,地处交通要道,辐射范围很广,信众分布于永泰、尤溪各地。光绪二十七(1901)年乌石禅寺重建,住持僧人立碑记录了捐款名单。其碑文如下:
今将重建乌石寺各善信喜捐银两、姓名列前:
永邑僧志成捐壹佰圆,僧宪林捐壹佰圆,张屯华柒拾两,张则封伍拾伍两,郑意富伍拾弍两,黄天成卅两,杨季雍廿伍两,吴忠阜廿一两,土洋温一十六两,蔡思堂十五两,郑怀坤十一两,郑元易十两,小洋李九两,张景泉九两,柯述公八两。许守□、许仁如、叶宗泰、詹平章、林廷贵、岭头坪、赤水众各七两。张则亮六两,林文烠、金恭恩、尤邑黄世高、林□馨、李正龙、□知加、林应文、许守贞、林子机、许明村、郑章迎各五两。郑章文、杨定猷、尤邑黄积德、杨伯远、山头乡吴光清、林行亮各银三元。金仕连、杨子云、张自台、许身伯、池文珍、林瑞立、林瑞东、林瑞文、叶达朝、李世教、天明堂、黄崇春、池乾选各三两。卢良多、林维万、后亭□、祥峦林、李仁□、叶加亮、郑武忠、郑文忠、双溪赖、谢再旺、林昌邦、林瑞通、池坤盛、凌世长、池坤梅、□秀兰、□友才各弍元。郑瑞亮、叶正为、池坤榜各弍两。林茂昇、林行魁、林行诚、林华奎、长安众、曾尧仁、谢梦予、林立辉、许道巽、许珍林、黄圣峰、隆美号、瑞茂号、郑招德、林行锐、林行选、林和峰、柯尔瑾、杨魁振、简友高、白福缘、郑益书、林景姜、柯鹄星、张惟俊、林文喜、萧力兴、林□廷、郑宗标、李正林、许德典各壹元。
黄正明捐五两,魏礼应三两。湖上坂众捐廿两。池乾□十二两。池宜贤捐十一两。池宜彩二两。□□二两。
光绪弍拾柒年岁在辛丑□□□□冬,重建乌石寺住持慧益,丁未春徒子□□竣立。
此碑涉及众多的人名和地名,从中可以看出当时乌石禅寺的辐射范围。笔者根据碑铭提供的线索,结合族谱和田野访谈,发现光绪年间参与重建乌石禅寺的村庄和家族广泛分布于永泰西部山区(图12)。其中大多是地处深山的林木产地,也有不少位于河流沿岸,可见重建乌石禅寺与经营山林经济密切相关。名单中有不少是以祖先或聚落的名义捐款的家族组织,如“蔡思堂”为白沙蔡氏开基祖、“白福缘”为双溪白氏二世祖、“黄正明”(黄进明)为碓头黄氏开基祖,还有土洋温、小洋李、后亭□、祥峦林、双溪赖、岭头坪、天明堂、长安众、赤水众、湖上坂众等显然都是家族聚落。由此看来,晚清时期的乌石禅寺,已经成为跨村庄和跨家族的宗教仪式中心。

图12 乌石禅寺题捐碑涉及村庄分布图
值得注意的是,光绪年间重建乌石禅寺的主持人,可能主要是盖洋郑氏族人。《乌石禅寺近代兴修纪略》记载:“历经兴衰起伏,多次修建。于清光绪二十七年,由盖洋乡绅郑植三、郑楷昌暨住持慧益募捐重建。”郑楷昌的谱名为郑凯昌,弟植三谱名机昌,为清末秀才。二人属盖洋郑氏扛界支房第三十四代族人(图13)。

图13 盖洋郑氏30—34世(部分)
郑氏家族是最早定居盖洋的土著家族之一,明清时期为当地里长户,也是人口最多的家族。郑子登生活在乾嘉时期,因开发山林发家致富,其三子建造了远近闻名的三对厝,其孙郑英中曾在村头建造虎笼寨。郑凯昌和郑植三作为英中之孙,继承了家族的财产和声望。叶家请他们主持重建乌石禅寺,可能是想凭借其社会影响力发起募捐。
民国时期,叶氏家族可能依旧掌管乌石禅寺的庙产,其族人至今引以为傲。不过,当时乌石禅寺经常入不敷出,需要求助于附近各大家族。在现存黄氏文书中,有一批民国年间的账簿,从中可以看到乌石禅寺支借钱财的记录。例如,民国十八(1929)年的账簿记载:“乌石清水祖师:七月初六,支伏洋10角,〔折钱〕700〔文〕。喜题去银弍两,接[折]钱1600〔文〕。八月十八,支瓦200,〔折〕瓦〔钱〕900〔文〕。”账簿还记载了黄氏家族与显圣宫、朱李明王庙和暗亭寺的账目往来。显圣宫是村头的社庙,朱李明王庙是前龙洋村的社庙,黄氏家族与这两座庙宇关系密切,经常提供资助。暗亭寺位于盖洋乡东北部,是永泰山区最重要的庙宇之一,主要供奉卢公祖师。黄氏家族通过参加暗亭寺的仪式活动,进入了当地更大范围的仪式联盟。
1949年后乌石禅寺逐渐衰败,到2010年才重建。如今,每年农历三月初七,乌石禅寺都要举办祈福法会,请清水祖师坐镇道场。该法会由住持僧人和当地道士共同主持,和尚负责念经诵佛,道士负责仪式表演。法会期间,当地各村各姓民众都会前往庙宇祈福消灾,参拜清水祖师,观看仪式活动。在这里,散居各地的族群通过祈福法会相互联结,形成了以庙宇为中心的仪式联盟。
七、结语
盖洋碓头村是多姓聚居的山间小盆地,自北向南形成碓头、前龙洋、村头三个自然村。自明代中叶以来,当地各大家族划分山界,开发山林资源,形成了以杉木、茶油、清明茶为重点的特色产业。碓头各大家族留下了丰富的历史文献,如族谱、契约、账本、科仪书、人情簿等,为研究明清以来的山区开发史提供了宝贵的原始资料。
碓头历史上的聚落形态,以祖厝和寨堡相结合为主要特色。明清时期,碓头各大家族都建造了类似“八面平楼”的大厝,可以居住三至四代人。这些大厝后来大多演变为祖厝,成为派下子孙的祭祖中心,为家族聚合奠定了基础。明清之际碓头各大姓创建的寨堡,到清代大多废弃了。晚清至民国时期,为了应对匪乱,各大姓联合重建寨堡,形成了超家族的军事联盟。不过,这些寨堡地处险要之地,缺乏水源,并不适宜居住。因此,碓头的“民居-防御建筑”表现为住宅与寨堡分离,不同于永泰其他地区的庄寨。
地处盖洋与洑口之间的乌石禅寺,供奉清水祖师,创建于明代中期。清康熙年间,其庙产由碓头叶氏族人接管,但仍然是当地民众的仪式中心。晚清时,盖洋郑氏族人主持重建乌石禅寺,永泰西部的家族与村落普遍参与捐款,形成了以庙宇为中心的仪式联盟。民国时期,在碓头黄氏家族的持续资助下,乌石禅寺成为各大家族共同支持的宗教仪式中心。这种超家族的仪式联盟,有助于改善族群关系,维护社会秩序。
(本文經出版方授權發佈,原載《莊寨密碼:永泰文書與山區開發研究》,福建人民出版社,2020年,頁118-137。注釋從略,引用請參考原文。)