厦门关近代建筑群包括坐落于厦门英租界的海关新办公楼、验货厂和鼓浪屿租界的正副税务司公馆、理船厅公所、验货员公寓等海关附属建筑。部分现存建筑作为鼓浪屿近代建筑群的一部分入选第六批全国重点文物保护单位。
1 历史沿革
福建作为中国历史上最早设立海关的省份之一,1684年即由清朝政府于养元宫设立闽海关厦门正口,负责对外港口贸易和面向台湾的军事控制。近代中国被迫开辟通商口岸,厦门关税务司署于1862年正式成立,史称“ 新关”或“ 洋关”,负责管理外船贸易,并对外征收洋税。
厦门关建筑群主要建于英租界和鼓浪屿租界两个地区。厦门英租界为全国租界中面积最小者,界址在今厦门岛南部海后滩鹭江道中段,南起水仙码头,北至海后路邮局,东西向起止点为升平路的横巷与磁巷(图1)。租界开辟后外国列强于此大兴土木,其中便有海关新办公楼、验货厂和码头等。

图1 厦门海后滩全图
由于厦门岛沿海地段缺乏整治、环境脏乱,且存在小刀会等反抗势力,景色优美的鼓浪屿成了外国人居住娱乐的更优选择,同时也成为彼时中国市政改革建设的典范。厦门关税务司署在鼓浪屿石墈顶及附近、大宫后园地和三丘田各地大量购置土地或房产。
2 英租界厦门关建筑特征
厦门关设立之初租用英租界洋行房屋办公,直到1870年始迁入海关旧办公楼。办公楼为两层西式砖石结构,西侧立面主廊用西式拱券。两侧建设附属平房供报关检查和邮政业务使用,临海一侧建造码头与伸出海面的石道。同时建有海关验货厂,隔马路与关署相望。
1909年,位于今海后路34号的厦门关新办公楼建成,新办公楼总建筑面积达2212.8平方米。为三层西式砖结构,建筑平面接近方形,西式四坡屋顶,连续拱券式外廊(图2)。

图2 旧海关楼与新海关楼
20世纪前期数十年间总税务司多次拨款修建,新中国成立后继续沿用为现代厦门海关业务大楼。由于局部基础下沉、建筑结构长期遭受风化朽坏,鉴于厦门海关业务长期使用、发展的需要,大楼于1985年11月20日拆除并就地重建。
3 鼓浪屿租界厦门关建筑特征
洋关进入鼓浪屿租界后,起初租赁当地房屋住宿办事,随后逐渐购地自建。海关建筑如公馆、宿舍等遍布岛屿,以显著的外廊式风格建于山上、海边,与当地居住地保持一定距离。

图3 厦门关税务司公馆
厦门关税务司公馆起初租用英籍船长菲茨吉本(M. Fitzgibbon)的吡吐庐(Beach House),随后将其收购并于1865年完成改建。地址为今田尾路27 号,高居山顶且临近海滩。占地14868平方米,建筑面积1976.18 平方米(图3)。西式二层砖木结构,券柱式外廊作主立面。呈矩形的建筑主体由条石混凝土构成。由于闽南地区气候潮湿多雨,筑地下一层为隔潮层,并可供储物之用。整体廊道宽窄适宜,感观自然。上下二层均有宽大外廊,立有白色挺拔廊柱于立面,柱间以红瓶状栏杆连接。第一层天花为券拱形,第二层为平顶状且较为平缓。屋顶中央二坡与四边四坡相辅叠加,以胭脂色红瓦装饰。内有9间房间,中央大厅尤为宽亮,供会议宴会议事之用。新中国成立后,税务司公馆多被部队、运输公司等单位借用,历史上经历多次修缮扩建,最终于20世纪90年代被拆除。

图4 厦门关副税务司楼

图5 厦门关大帮办楼

图6 副税务司楼一层平面图与立面图
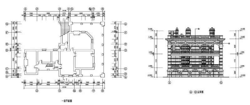
厦门关副税务司公馆英文名称为Hillside House,由1865年购入的副税务司楼(Hillcrest)和1923年改建的大帮办楼(Hillview)两部分组成,位于今漳州路9号和11号(图4,图5),处于鼓浪屿观海园内。二者建筑形式、风格类似,整体外观简练大方,受现代建筑风潮影响。东南两面均有外廊廊柱,立面简洁,线条出彩。清水红砖墙与带凹槽的装饰性砖柱插入檐口,其余砼柱和栏杆白色喷漆,建筑立面红白对比鲜明(图6)。其中较为突出的是副税务司楼主体建筑为矩形,但于侧面增添“L”形附属建筑,形成两个独立庭院空间,反映出外廊式建筑在闽南地区的本土化改进。新中国成立后,副税务司公馆建筑多次被军队和政府借用,经历多年风雨留存至今,产权依然属于厦门海关。

图7 厦门关理船厅公所

图8 理船厅公所一层平面图与立面图
厦门关理船厅公所原址1883年购置于鼓浪屿三丘田内,重建于1914年,地址为今鼓新路60号(图7)。建筑为矩形主体附加小块结构。由于气候原因设地下防潮层,底层为架空防潮拱券,二层为梁柱,三层为券柱,拱券中部模仿券心石。四面回廊且门窗皆落地,扩大了室内的视野并加强了通风采光。落地窗的顶部增加两根砼梁,加强楼板承重。建筑以红白两色为主调(图8)。整幢建筑表现出强烈质感和几何美感。建筑庭院与隔壁海关通讯塔庭院相连成一体,共同组成了鼓浪屿东北角遗产建筑风景带。

图9 厦门关英籍验货员公寓楼
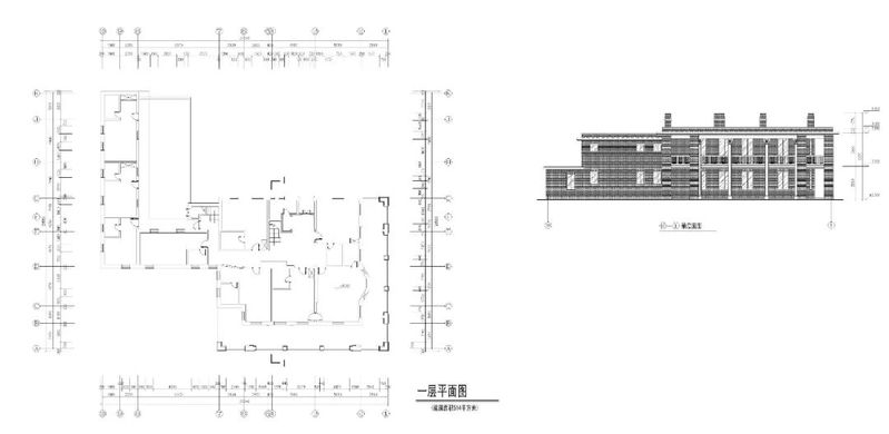
厦门关英籍验货员公寓楼于1923年建成。民间称“五间楼”,又称“白鼠楼”,位于今中华路2号(图9)。整体建筑为西式二层砖木结构,具有西方折中主义建筑风格。建筑东、西、南侧设有外廊,一层为平梁砖柱,二层为连续砖拱。该建筑最为显著的特征是内部住宅分为5个跃层式单元,平面布局呈单元对称或重复,是一座两层五单元连排式集合住宅(图10)。

图10 验货员公寓楼一层平面图与立面图
鼓浪屿上的厦门关近代建筑群大部分建筑平面布局简洁、布置对称,以楼梯连接外廊与通道,除建筑主体外,或多或少附加“L”形或块状附属建筑,可视为当时刚刚露出萌芽的现代主义、折中主义建筑风格的雏形。内部功能分区明确紧凑,外观也无繁琐装饰。
除上述较典型海关建筑外,1868年厦门关于升旗山顶购置一部分地产设升旗站。1870年租用中华路4号后改为海关俱乐部,现为鼓浪屿中山图书馆,原晃岩路41号鼓浪屿中山图书馆与中华路4号海关俱乐部对换使用。1888年购地于田尾路25号和54号,25号作为缉私舰舰长宿舍,后改作顶塔管理员宿舍。同年于漳州路17号购置西式洋楼作为巡灯司公馆。1921年于岛美路头设新验货厂,后因开辟马路拆卸,转移至海后滩台湾银行前第20号地区,即今海滨公园。
(本文經作者授權發佈,原載《建築史學刊》2022年第3期,頁160-163。圖文有刪節,注釋從略,引用請參考原文。)